About 1524 Se 13th St
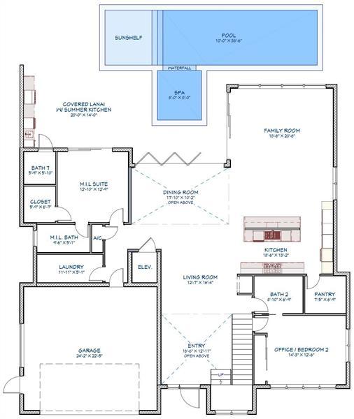
EXCELLENT INVESTMENT OPPORTUNITY! 2025 NEW CONSTRUCTION 5,891 SF 2-story residence with approved plans. $$$ BUILT IN EQUITY $$$ Open concept contemporary design in the highly desirable Rio Vista island community of Lauderdale Harbors. Situated on 70-feet of prime ocean accessible deep water with no fixed bridges, mere minutes to Port Everglades Inlet. ACT FAST. New seawall and concrete dock on a wide canal measuring over 140 ft. Plans included for Buyer to complete construction of 6 bed/7 bath with elevator, pool, spa, and lanai. Property will convey AS-IS, CASH ONLY. Closing is not subject to Seller obtaining Certificate of Occupancy. BUY NOW!
Features of 1524 Se 13th St
MLS® # | F10513137 |
---|---|
USD | $4,449,000 |
CAD | $6,262,546 |
CNY | 元31,768,085 |
EUR | €3,850,730 |
GBP | £3,354,052 |
RUB | ₽355,958,706 |
Bathrooms | 0.00 |
Total Square Footage | 7,700 |
Acres | 0.18 |
Type | Land |
Sub-Type | Zoned Residential |
Unit Floor | 0 |
Status | Backup |
Membership Equity | No |
Community Information
Address | 1524 Se 13th St |
---|---|
Area | 3600 |
Subdivision | Lauderdale Harbors Sec A |
City | Fort Lauderdale |
County | Broward |
State | FL |
Zip Code | 33316-2212 |
Amenities
Utilities | Electric, Sewer, Water |
---|---|
Is Waterfront | Yes |
Waterfront | Canal Front, Canal Width 121 Feet Or More, No Fixed Bridges, Seawall |
Has Pool | No |
Pets Allowed | No |
Interior
Fireplace | No |
---|
Exterior
Lot Description | < 1/4 Acre |
---|
Additional Information
Days on Market | 103 |
---|---|
Zoning | RS-8 |
Foreclosure | No |
Short Sale | No |
RE / Bank Owned | No |
Waterfront Frontage | 70 |
Listing Details
Office | LoKation |
---|---|
Phone No. | (954) 662-4513 |