About N/A
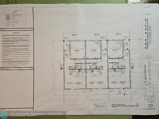
DEVELOPER OPPORTUNITY Using 3 existing Walls' & Slab for the new construction of a (3) Three Unit (2) two story, 1760 square feet, gross plans, negotiable, Townhomes with attached Garages. WILLING TO SELL PROPERTY TO DEVELOPER The plans that we have on the site is a sample of what can be done on the property. You would be pulling the permit for the City of Fort Lauderdale. I am a Structural Engineer, that can do all the plans for the City, plus the demo plans
Features of N/A
MLS® # | F10500062 |
---|---|
USD | $790,000 |
CAD | $1,109,437 |
CNY | 元5,629,856 |
EUR | €679,850 |
GBP | £591,667 |
RUB | ₽62,211,710 |
Bedrooms | 3 |
Bathrooms | 3.00 |
Full Baths | 2 |
Half Baths | 1 |
Total Square Footage | 1,760 |
Living Square Footage | 1,568 |
Acres | 0.00 |
Year Built | 1958 |
Type | Residential |
Sub-Type | Townhouse |
Restrictions | No Lease |
Style | Townhouse Condo |
Unit Floor | 2 |
Status | Active-Available |
HOPA | No HOPA |
Membership Equity | No |
Community Information
Address | N/A |
---|---|
Area | 3360 |
Subdivision | none |
City | Fort Lauderdale |
County | Broward |
State | FL |
Zip Code | 33308-7788 |
Amenities
Amenities | No Amenities |
---|---|
Parking Spaces | 1 |
Parking | 2 Or More Spaces |
# of Garages | 1 |
Garages | Attached |
View | Other View |
Is Waterfront | No |
Has Pool | No |
Pets Allowed | Yes |
Security | Unit Alarm |
Interior
Interior Features | First Floor Entry, Cooking Island |
---|---|
Appliances | Dishwasher, Disposal, Gas Water Heater |
Heating | Gas Heat, Reverse Cycle |
Cooling | Ceiling Fans, Central Cooling, Electric Cooling, Gas Cooling |
Fireplace | No |
Exterior
Exterior Features | Screened Porch |
---|---|
Construction | Cbs Construction |
Additional Information
Days on Market | 173 |
---|---|
Foreclosure | No |
Short Sale | No |
RE / Bank Owned | Yes |
Listing Details
Office | A American Capital Leasing Inc |
---|---|
Phone No. | (954) 772-3699 |